住宅 Sumai
C Atelier

アトリエ C
北海道 帯広市
N House

N邸
東京都
A House

A邸
東京都 世田谷区
M House Renovation

M邸(マンションリノベーション)
東京都 港区
I Residence

I邸
東京都 台東区
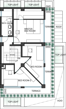
空気のミルフィーユ
この家は二重の階段でできている。上と下では季節が2か月違う。梯子のように前が透けて見える階段と、スキップしている五層の床も階段状だ。客用のトイレにしかドアがないので、ミルフィーユのように幾層にもなっている空間はいろいろな高さから観察される。それぞれが自分の居心地のいい段に座ったり、尻をかけたりする。そしてなぜだろう、階段は手招きして、上へ上へとヒトを呼び込む。自分の足で登り切ったところは、どこも聖地だ。すべり台の上でも、学校の屋上でも。手を広げて、」足を投げ出す。この家には天窓が開いた檜の風呂がある。
施主は「風呂桶が唯一の贅沢品」と笑うが、もしや気がついていないだろうか。何もないままで、蜜が溢れるようなヴォイド(空洞)こそ、現代の贅沢だと。この家の設計者は意匠ではなく、時間や空間を施主のためにしつらえた。刻一刻と変化する暮らしを共に作る装置として。「生活(人生)は毎朝発明し、夜には全部返してから眠らないといけないのだよ」とエットレ・ソットサスは言っている。
電子機器に依存した日常の上で、空は昔より少し遠いかもしれないが、それでも毎日そこにある。台風の前には不気味に黄色くなるし、低い雲からスプレイのような雨を降らせることもある。ヒトは空の引力と大地の引力の間で、ある時間と場所のバランスをとっているのだ。
か弱い苗木もそのうち育つだろう。檜はいつか朽ちるだろう。不思議な文字のお札を埋めたり、米や酒を撒いたり。カーテンの生地が決められずに騒いだり。ヒトの営巣行動は遠くから見ると、どこか滑稽なものに違いない。大きな猫たちの歩き回るこの界隈で、たまには神様にでも電話してみようか、と思う。
(VALUES 2007冬号より 文:伊東史子)
A Residence

A邸
東京都
平屋に住むと言う事
ほとんどの生活部分を平屋にしてしまう事がアイデイアの全てである。
世代が変わり、時代が変わっても変化に対応していける事、その為には建築のフレキシブル性と未来に残したいと感じる豊かな空間を内包させる事が必用である。それは、現代の日本の民家をつくる、住宅型の再構築とも言えるかもしれない。
スケルトン/インフィル分離、コンクリート強度アップ、乾式2重床による将来のプランや設備変化への対応性と言った方策や、屋上緑化、外断熱工法、断熱サッシ/ガラス、太陽光発電、地下水利用、と言ったエコロジー性能アップも組み込んでいる。
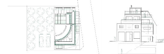
H Residence Project

H邸
東京都 渋谷区 代官山
店舗と住宅の複合建築計画案
関係性をずらす
東京・代官山、ヒルサイドテラスの裏手にある敷地に、家族4人の住居とカフェ、店舗、レストランを複合させる計画案
道路斜線のセットバックと空間の関係性をずらす事によって生じた小さな隙間が様々な風景をつくり、それが連続して変化ある住まい・店舗と街の程よい関係性をつくりあげている。







































































